Rehabilitacion torre histórica

Rehabilitación de un edificio del siglo XV
AÑO 2019/2020

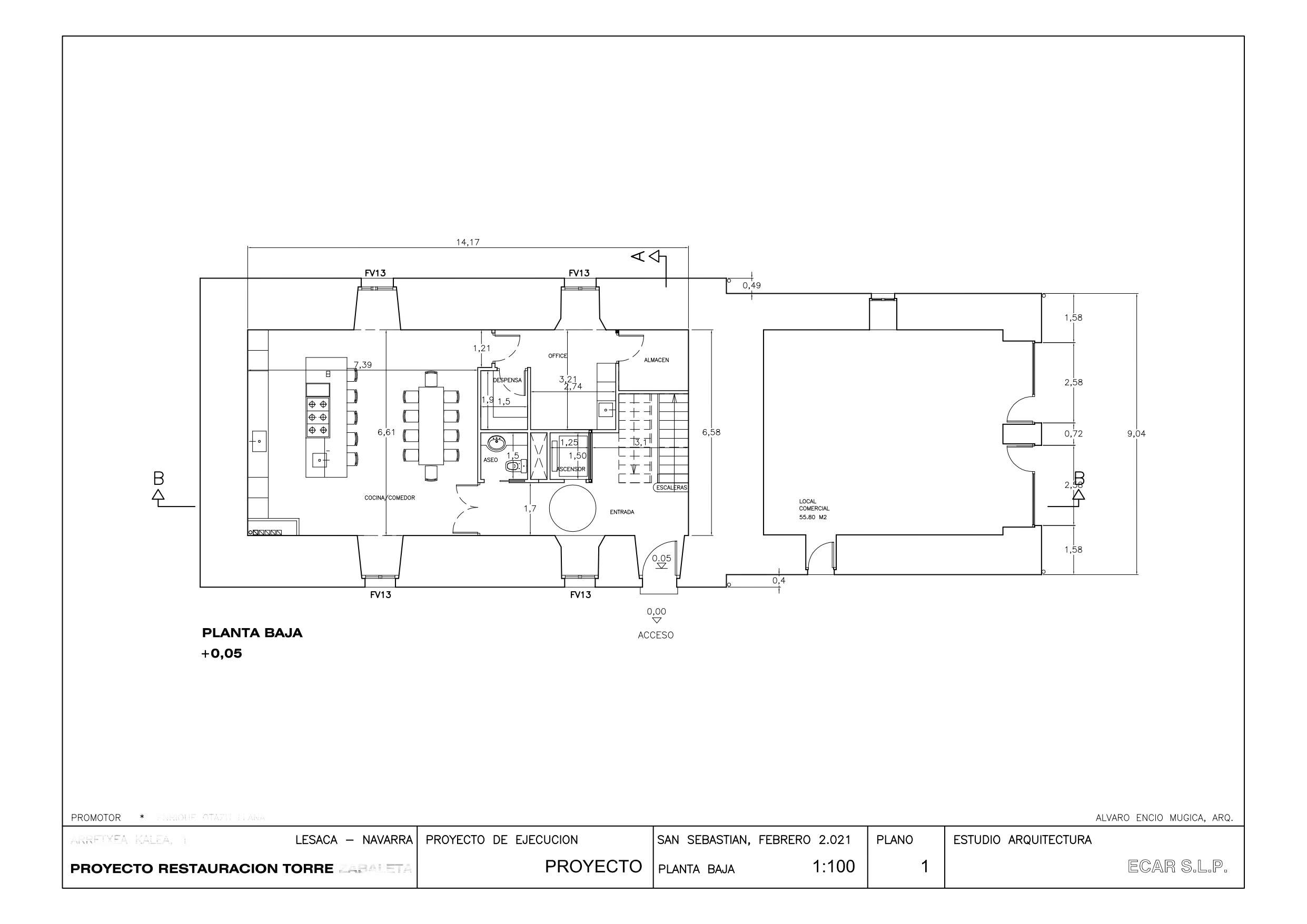
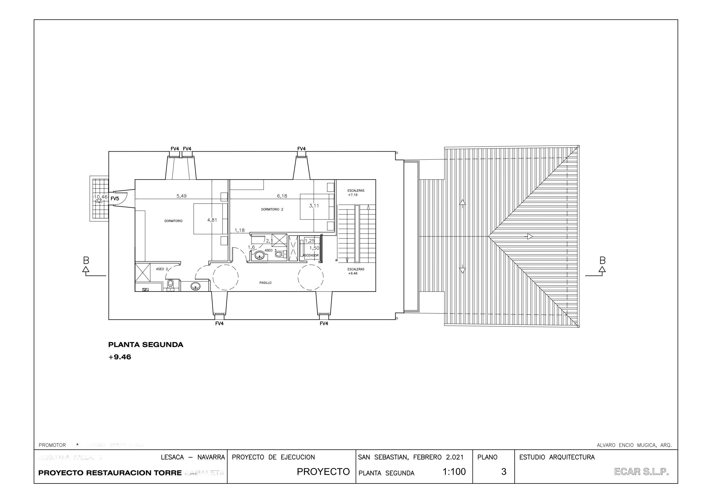
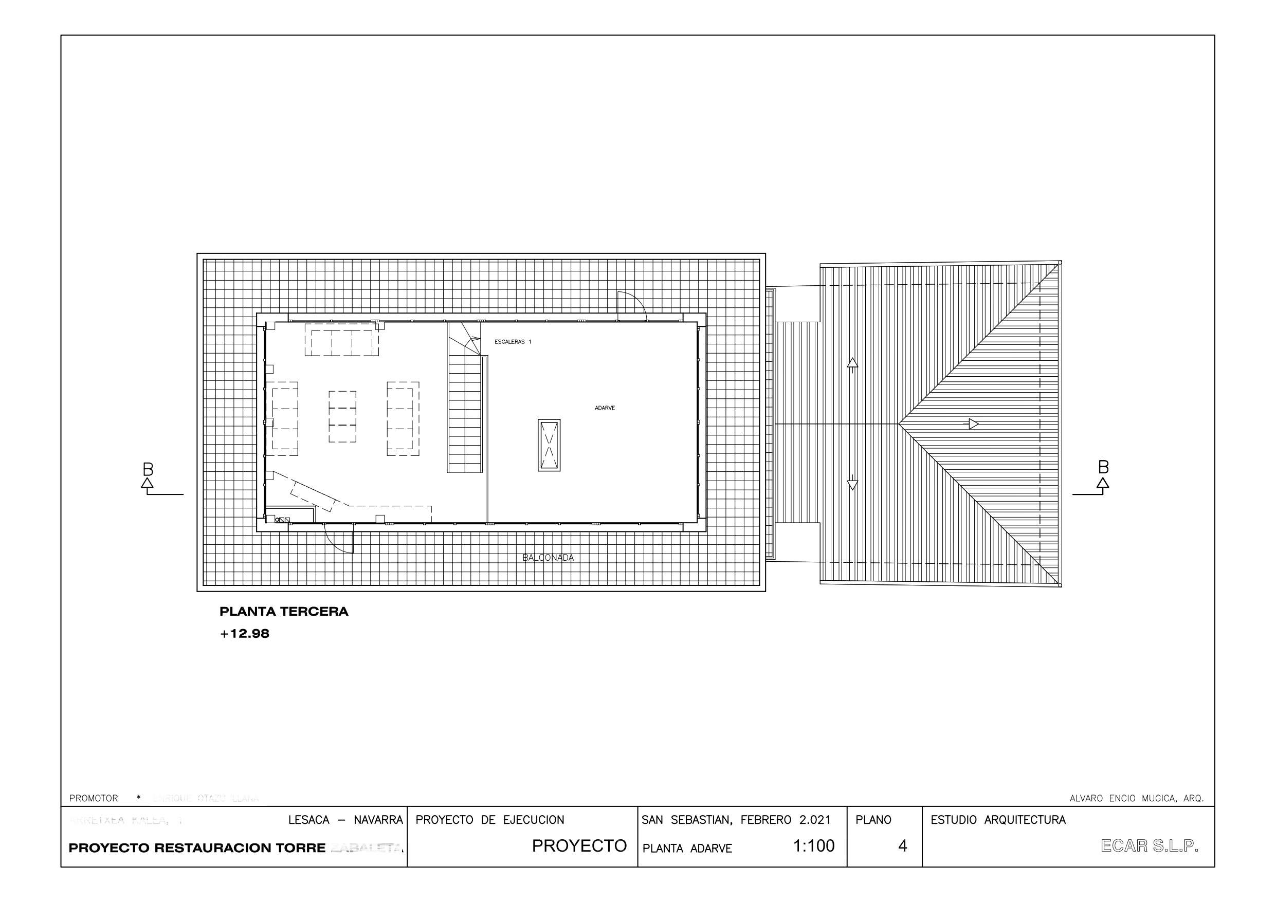
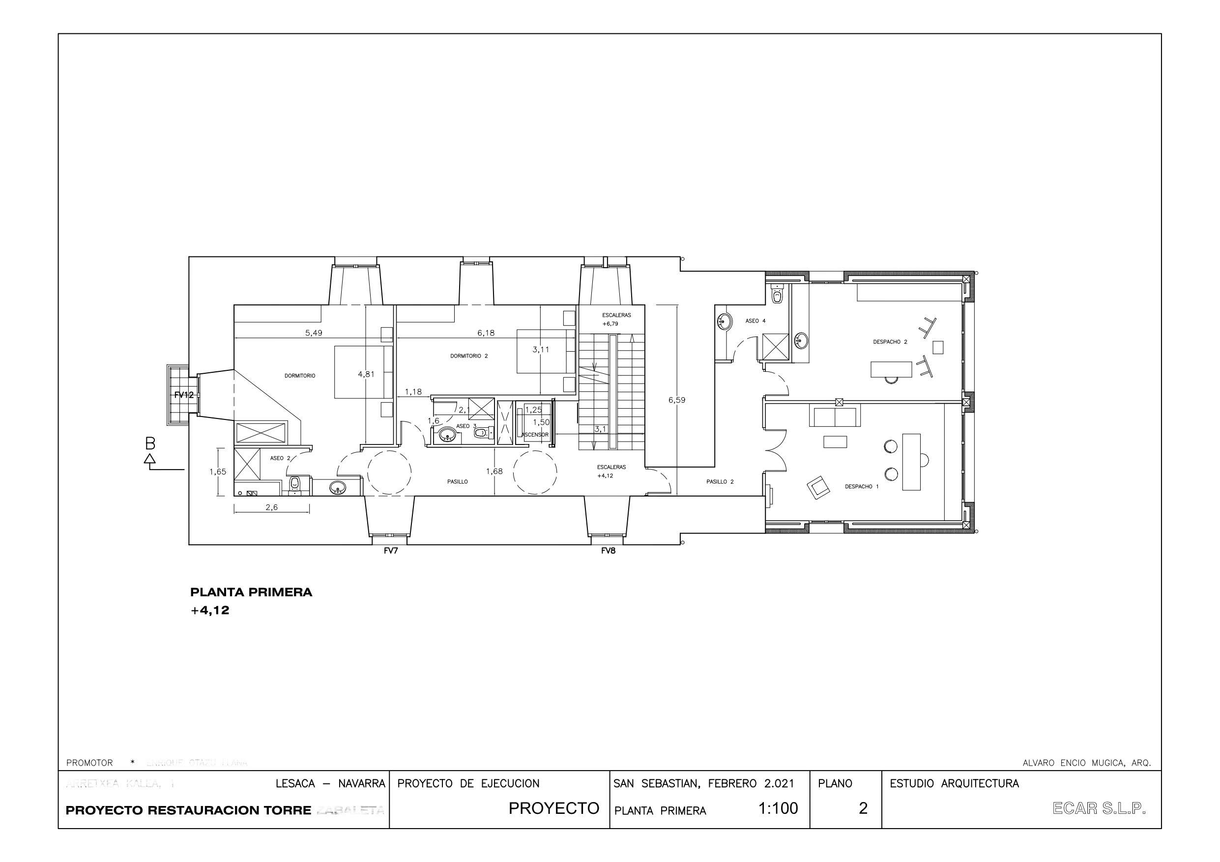
La torre está realizada en piedra sillería, de planta cuadrada y tres niveles.
Fue antiguo cuartel de las tropas francesas en la guerra de independencia entre 1808 y 1813.
Actualmente se rehabilitará para uso de vivienda particular
ARQUITECTO: Álvaro Encío Múgica
INTERIORISTA: Cristina Peralta Nebot